Your Local Architect in East London
07961 076228
Google Reviews

From Extensions

To Approvals That Last

Even when a proposal seems “Permitted,” councils still assess impact, design, and scale. Larger extensions, outbuildings, or rebuilds often sit on the edge of PD limits and need careful handling to stay compliant.
FormedLands helps homeowners and small developers navigate complex or borderline PD schemes through evidence-led planning, local policy insight, and clear design logic.

Your first step to understanding how to secure lawful development certificates or approvals and how councils interpret PD rules in practice.

arrow sales 1
2d8622cf 98f2 4884 bff2 e9b89a5aa1ad
Local Experts in East London Planning & Design – Secure Your Planning Permission Faster – Don’t Risk Rejection – Speak to an Expert FirstLocal Experts in East London Planning & Design – Secure Your Planning Permission Faster – Don’t Risk Rejection – Speak to an Expert First

Why Many Large Home Applications Fail

Most refusals happen not because the design is poor but because proposals misread the limits of Class A–E Permitted Development rights.
Councils still test height, depth, and neighbour impact under GPDO 2015 and local design codes. Without a clear justification or measured drawings, applications are easily refused.
At FormedLands, we translate PD legislation and local plan policy into drawings and narratives that demonstrate compliance and design quality.

07961 076228

Turning Policy Into Possibility

Early Insight

We review your property, previous extensions, and local Article 4 directions to confirm what qualifies under PD and where a full application may be needed.

Design & Narrative

We develop a concept that respects PD limits and character guidance ensuring the proposal meets both the technical and design requirements for approval.

Clear Submission

Your Certificate of Lawfulness or Householder Application is structured to address PD tests directly, with plans and evidence that anticipate the council’s assessment.

Trusted By Homeowners Across East & North London

Your first step to understanding how your council interprets Permitted Development before committing to drawings or builders.

homz change of use couple 1024x683 1
Architects near me

Recent Approvals In Enfield, Barnet & Waltham Forest

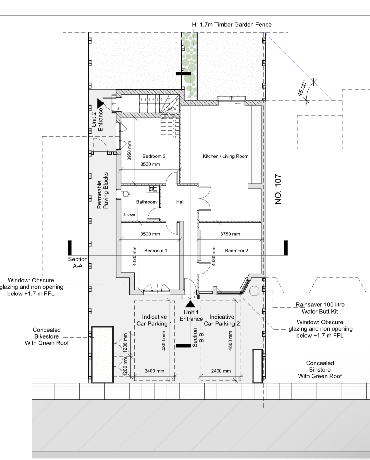
Including 31 Avon Road a large rear and side extension initially flagged as over-scale. Through careful re-design within PD volume limits and neighbour impact controls, the scheme secured a Lawful Development Certificate and was completed without delay.
Guidance, measured plans, and successful examples of extensions, lofts, and rebuilds approved under PD or through householder applications.

Everything You Need To Know About Planning in the Green Belt

Why Choose FormedLands

Proven Track Record In Large-Scale Home Extensions

We’ve secured approvals for rear and side extensions, loft conversions, and outbuildings that maximise space while remaining lawful.
Our team combines architectural precision with planning expertise to avoid enforcement risk and re-design delays.

Quick facts:

  • 90%+ success rate on PD-related submissions
  • Over a decade of London residential planning experience
bonus sales graphic min

Before You Submit Drawings Or Start Building, Read This First

Learn how to confirm whether your proposal truly qualifies under PD and when to apply formally for approval.

Our Free Guide Covers:
 • What Counts As “Permitted” Under GPDO 2015 (Class A–E)
• When Larger Home Extensions Need Prior Approval
• How To Evidence Volume, Height, And Boundary Compliance
• Real Case Studies  including 31 Avon Rd London E17 3RB and PD Strategies That Work

From Refusal To Approval

A homeowner in Enfield had a rear extension refused for exceeding depth limits.
We re-designed the scheme within PD parameters, added daylight analysis, and secured a Lawful Development Certificate within 6 weeks similar to our approach at 31 Avon Road.

7b4b4eb8 afd7 4a46 9609 5abcdec3e208
eb26ad95 4532 42d4 be28 5afa5d9634ab

Ready to Discuss Your Site?

After reading the guide, we can review your property together no pressure, just clear advice on your best route to lawful and approved development.